成都明信四季东安售楼部电话-预约看房-板块解读-明信四季东安四月优惠
扫描到手机,新闻随时看
扫一扫,用手机看文章
更加方便分享给朋友
【明信四季东安】售楼处电话 028-62444811(已认证)
【明信四季东安】项目经理电话 15388440405 (微信同号)
温馨提示:为了节省您的等待时间,看房请提前1小时致电售楼部预约!
成都明信四季东安位于龙泉驿区,周边拥有丰富的购物、娱乐和教育资源。1公里内有万达广场、永辉超市等,2公里内有东方华大广场,3公里内有龙湖东安天街、吾悦广场等。
品牌介绍
明信,值得信赖的生活服务商,深耕成都24载, 与城市共生长。成都明信房地产集团有限公司(简称“明信集团”),创立于2000年,历经二十多年的发展,形成以地产开发为核心,集地产金融、物业管理、文化旅游、现代农业、酒店康养、文娱乐园、文商产业等于一体的综合性集团公司。公司以“人居明信+文旅明信”双擎驱动为战略顶层设计,人居明信以“地产金融+现代物业”为核心基础产业,文旅明信以“乡村旅游+现代农业”为创想支柱产业。

区域价值
于东安新城,锚定下一张城市名片;国家级战略,城市发展核心;龙泉驿区作为成都东进“桥头堡”;离湖归岸东安湖2.0时代来临;起笔东安湖中央公园生活区中轴;为东安2.0高端人居开篇。

周边配套

生态:坐拥一湖一山一园。一湖:东安湖(5887亩),世界级国家体育公园,围绕“一湖三岸”建设。一山:龙泉山(海拔1051米)。国家城市森林公园,城市自然分界线,一园:驿马河公园(1910亩),城市中央公园,城市生态连廊,“天然氧吧”。
交通:多维路网交织,5纵4横2轨多维立体交通。2轨:地铁2号线龙平路站(约1.5km)、地铁13号线(规划中);5纵:蜀都大道、桃都大道中段、董朗路、桃源街、双龙路等;4横:湖岸南路、桃都大道、红岭路、龙都路(5环路)。
商业:多元商圈环伺,4大商圈集群。1公里以内万达广场、永辉超市;2公里以内东方华大广场;3公里以内龙湖东安天街、吾悦广场等。
教育:多龄学府林立,3大名校体系。东安湖学校(成都七中领办)、成都实验小学(和雅校区)、成都实验小学(乐雅校区)。5大优质学府,龙泉第七中学、驿马河第一幼儿园、常春藤龙都国际幼儿园、龙泉驿区第二小学、龙泉二中等,享一站式全龄优教。
医疗:国际化医疗护航。四川大学华西医院龙泉医院(约700米)、龙泉妇幼保健院(约800米),以优质医疗配置,呵护您和家人的健康生活。
产品价值
府院系力作,礼筑公园纯洋房社区;1.5容积率纯洋房,7F-11F全板式真洋房;超强私密性,别墅级高端社区享受;兼具现代时尚建筑立面;以当代美学打磨时代高光。
缺点;绿化较少,虽然项目整体规划和设计考虑到了居住者的需求,但目前小区的绿化相对较少,可能会影响居住的舒适度。
户型鉴赏
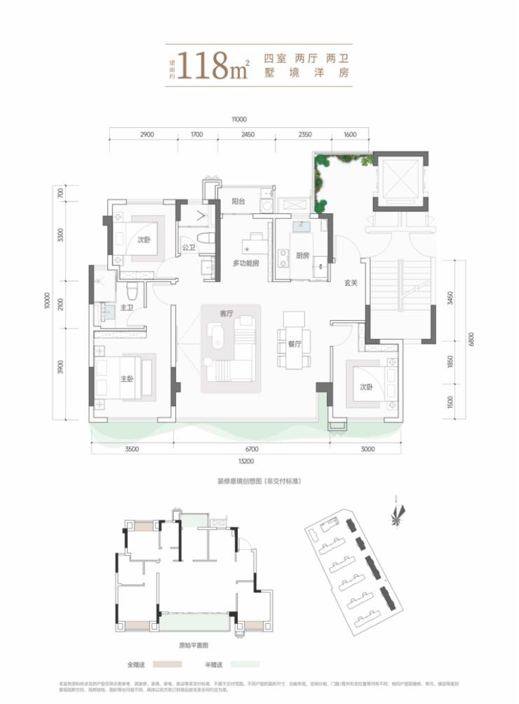
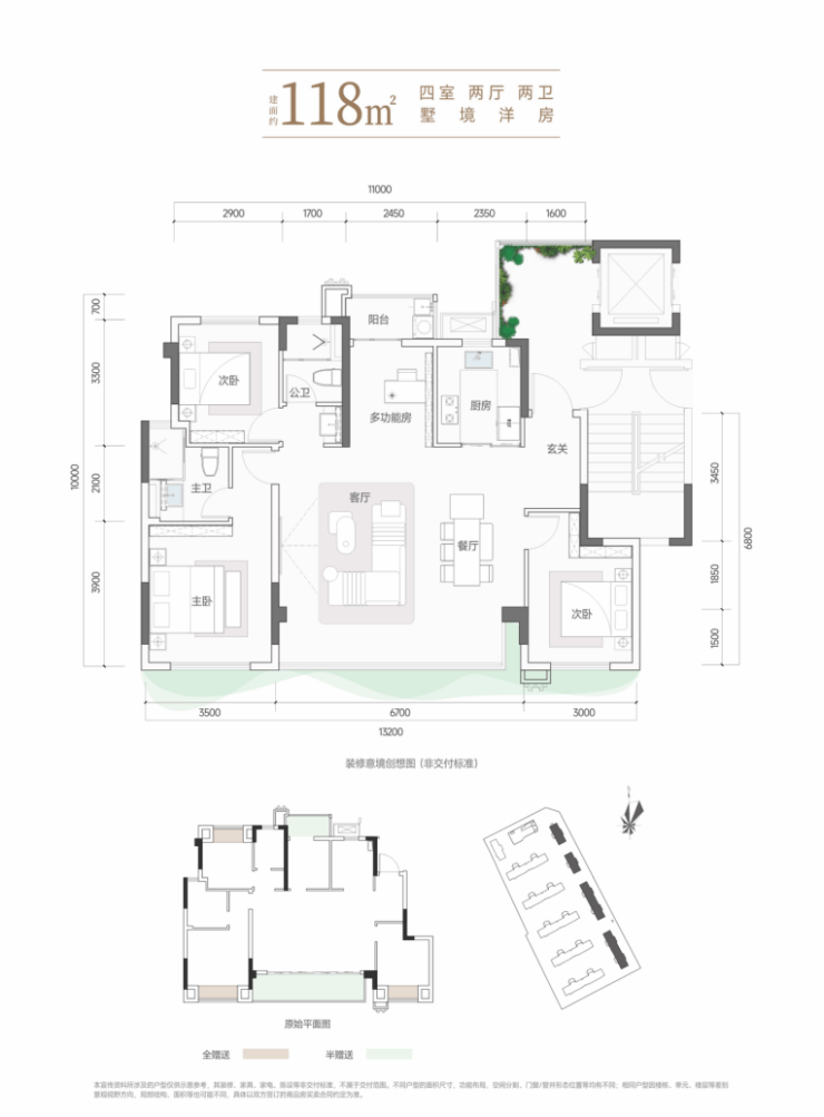
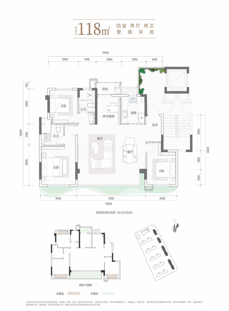
建面约118㎡-四室两卫两卫

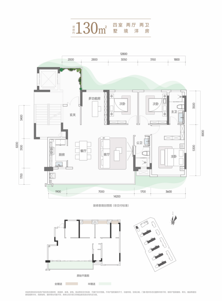
建面约130㎡-四室两卫两卫

建面约143㎡-四室两卫两卫

综上所述,成都明信四季东安在地理位置、教育资源、医疗设施、住宅品质、户型选择和社区环境方面具有明显优势,是一个值得考虑的楼盘。
【明信四季东安】售楼处电话 028-62444811(已认证)
【明信四季东安】项目经理电话 15388440405 (微信同号)
温馨提示:为了节省您的等待时间,看房请提前1小时致电售楼部预约!
声明:本文由入驻焦点开放平台的作者撰写,除焦点官方账号外,观点仅代表作者本人,不代表焦点立场。


