成都【阅天府】售楼处电话-最新房价-购房补贴-阅天府十二月价格
扫描到手机,新闻随时看
扫一扫,用手机看文章
更加方便分享给朋友
【阅天府】售楼处电话 028-62444811 (已认证)
【阅天府】项目经理电话 15388440405 (微信同号)
温馨提示:了解楼盘最新动态可拨打售楼处电话!【看房请提前1小时致电预约】
成都阅天府位于天府新区,具体位置在天府新区厦门路与雅州路交界处,周边环境优美,临近天府公园和鹿溪河湿地公园。
首先,这里有高规格的顶层规划。
在国家级新区天府新区的总体规划中,总部商务区的定位是要聚集重大产业项目,打造巨擘企业形成的超级总部经济生态圈。“国家战略天府新区的关键节点,成都高质量发展的压舱石。”在对天府新区的报道中,“天西”作为区域核心被反复提及。在未来成都迈向世界顶级都会城市的伟大征途中,天西无疑将扮演关键角色,提供关键动力。
其次,这里有令人惊叹的兑现速度。
一个伟大规划,到底具备多大的效用,还要看其具体的兑现情况,仅有规划,而无兑现,一切都将成为空中楼阁。而天西正在以肉眼可见的速度奋进中。
2023年开始,天西建设进度明显提速。“1年开工建设,3年初步成型,5年基本建成,8年全面形成城市新中心”是总部商务区总部基地给出的建设时间表,现在只过去了3年多,但天西的兑现速度已经让每一个人感同身受。
对标世界一线都市的生态基底
生态是天西的名片,以生态为底色构建出的世界公园城市典范,无论是天府公园,还是人字绿廊,都按照“世界级”进行对标打造。
占地约3450亩的天府公园,可比肩纽约中央公园、伦敦海德公园;同时,还可享受到兴隆湖、鹿溪河生态区、锦江生态带、麓湖的辐射,让这里呈现出生机勃勃的盎然绿意。
高效交通体系链接成都乃至世界
天西板块目前已有6号线秦皇寺站,以及新开通的19号线二期红莲站,此外还有规划中的地铁16号线、26号线等多条交通线。“五轨四站”的成形将让这里成为成都交通路网最密集的板块,通过密集路网高效链接双机场,让天西从成都走向世界。
高规格,高起点,商业活力指数不断攀升
天西有着类似太古里的近20万方公园低密商业街区、天府招商花园城、396地标奢尚生活中心、城市级商业消费圈、TOD地下商业消费形式等构建的5重商业消费体系。目前,国际会议中心、四川首个免税商店TFS、天府大悦城等商业资源已开业迎客。
其中,396超塔项目已于去年底开工建设,而天府招商花园城也将在今年迎来开业。
高浓度、高密集的生活配套
天西属于C学区,这里的教育实力强劲,其名校浓度让不少主城的家长都感到羡慕:天府七中及其小学部、天府七小等等均拥有强大的教资实力,已经做实了成都教育名校头部的位置。
天西板块的医疗资源也较为丰富,拥有华西天府医院、华西牙科总部(在建)等堪称国内医学“天花板”水平的名片级医疗坐镇。而省二院天府医院(在建)、天府新区妇女儿童医院(在建)、万达UPMC国际医院等正陆续建设呈现中。
目前,四川名人馆、“森林”幼儿园等众多文化教育、休闲娱乐等配套设施也正逐渐成型……从一纸规划变为现在多点发力的巨擘,天西的确定性变得越来越明晰,价值正不断攀升。
由华发股份&华润置地双匠联袂打造的——阅天府,用全新的产品语言来进行了回答。
进阶1:“无界社区”,让城市与社区共融、局部消融社区边界
把143亩视为统一整体,通过巧妙设计,打造“一纵三横多环”空间结构,大胆采用“弱围墙化”理念,通过局部的消隐化处理,溶解社区边界。
进阶2:以极具辨识度的建筑审美,塑造城市“视觉新名片”
阅天府在里面上融入蜀锦编织概念,使用定制LOW-E玻璃270°曲面环绕+一体成型的毫米级工艺铝板,将传统直角升级为施工难度更大的圆弧转角,打造具备前沿审美的外立面。
进阶3:楼市创新悬浮“双全景舱”,270°环幕采光
最后必须要上大餐,今年超级亮眼的户型!!
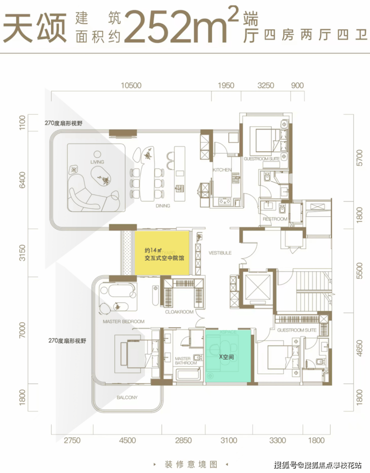
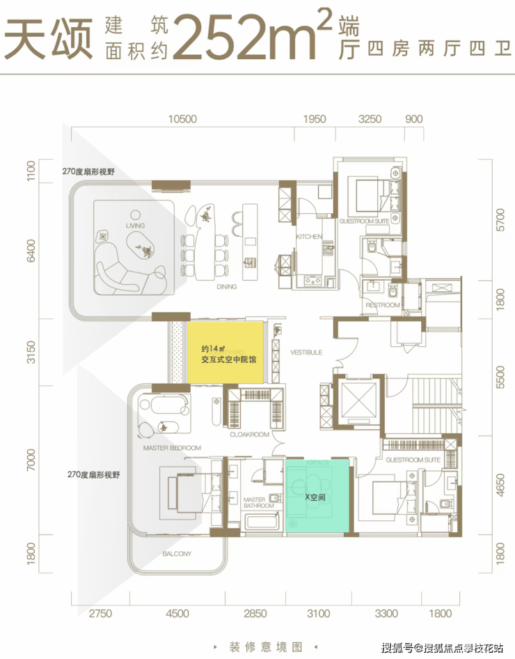
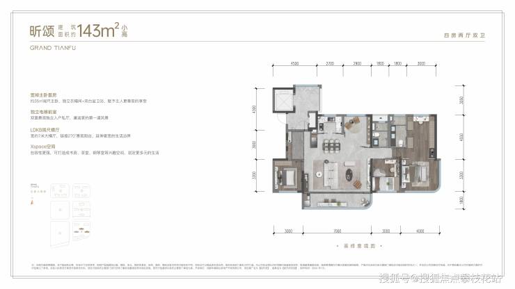
项目首批次推1、2、6号地块建面约143㎡-252㎡洋房、小高和大平层,其中关注最高的是199㎡的南厅和252㎡王牌端厅户型。
户型鉴赏;
建面143平套四双卫
建面143平套四双卫
建面169平套四三卫

建面约199㎡ 南厅
肉眼可见的方正,入户后除了玄关还有个多大的生活阳台!!客厅开间约7.2米堪称巨幕,LDKB有约70㎡左右大得吓人。
厨房旁边宽约2.1米的X空间是送的哈~封进来你养狗养猫儿都要得。
除了公区,卧室系统也很夸张,双套房的基础上还能整一个超大主卧,主卧套独立衣帽间、浴缸、双台盆这种高端套餐全安排。
约6米的任性开间尺度当人家两个房间了,如果你想,可以匀一个书房、影音室、儿童房空间出来。

建面约252㎡端厅,阅天府的压轴大戏
这个户型太浮夸了,三面采光过于敞亮,有两个巨大的全景舱空间,分别是约77㎡的U型悬浮全景聚厅和主卧套。
悬浮和全景是重点。
客厅和主卧有点像是滋了一坨出切,站在上面真的跟飘在空中一样。

综上所述,成都阅天府是一个位于天府新区的高品质住宅项目,具有较好的生活配套和投资潜力,适合对居住品质有较高要求的购房者考虑。
【阅天府】售楼处电话 028-62444811 (已认证)
【阅天府】项目经理电话 15388440405 (微信同号)
温馨提示:了解楼盘最新动态可拨打售楼处电话!【看房请提前1小时致电预约】
声明:本文由入驻焦点开放平台的作者撰写,除焦点官方账号外,观点仅代表作者本人,不代表焦点立场。


