成都蓝润春风屿湖售楼处电话-周边环境评测-楼盘百科-春风屿湖环境如何
扫描到手机,新闻随时看
扫一扫,用手机看文章
更加方便分享给朋友
【蓝润春风屿湖】售楼处电话 028-62444811(已认证)
【蓝润春风屿湖】项目经理电话 15388440405 (微信同号)
温馨提示:为了节省您的等待时间,看房请提前1小时致电售楼部预约!
成都蓝润春风屿湖是一个值得考虑的住宅项目,它位于天府新区南湖版块,周边配套完善,蓝润春风屿湖周边拥有环宇荟购物中心、天府新区第一人民医院、四川石油管理医院等生活配套设施,满足居民的购物、医疗需求。
天府新区 5号线南湖立交地铁口
面积92-122-185-189-200平
套二套三套四 跃层
现房 楼层可选 大户型南北 东西通透,小户型朝南
付款方式:按揭首付3⃣成起(房源充足)
低于周边二手4000-5000➕/平米
单价仅需17000元/平米起
项目所在位置
———————————————————
基本信息
车位配比:1.1.7
绿化率:35%
容积率:2.9
物业费:2.9元/平方米/月
梯户比:2T4户 3T6户
交房时间:精装现房
配套信息
交通:距离地铁5号线南湖立交站283米。剑南大道、牧华路。
教育:天府一幼、南湖光亚国际幼儿园;天府四小、天府三小、天府新区华阳小学、双流协和小学;天府新区华阳中学、天府四中、成都市实验外国语学校西区
商业:13万方环宇荟一街之隔
医院:天府新区第一人民医院
——————————————————————
二、项目鸟瞰图
面积185平米 套四三卫 南北(东北)看公园看江
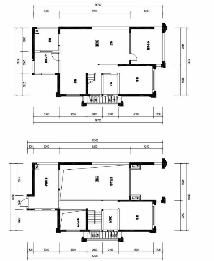
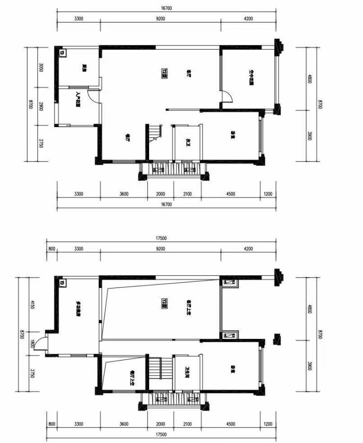
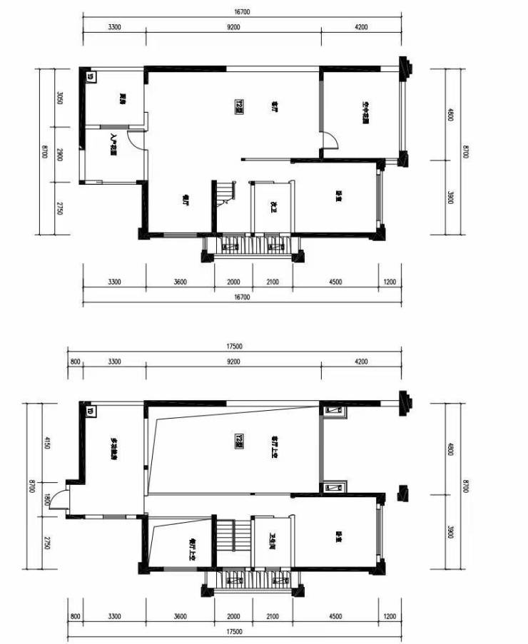
面积122平米舒适性套三双卫 朝南
92平米宽敞套二单卫,生活阳台有改动
200平米跃层 南北向(东北看公园,看江)
综上所述,蓝润春风屿湖以其良好的配套设施、便利的交通、丰富的教育资源、合理的价格等优势,成为一个值得考虑的住宅项目。
【蓝润春风屿湖】售楼处电话 028-62444811(已认证)
【蓝润春风屿湖】项目经理电话 15388440405 (微信同号)
温馨提示:为了节省您的等待时间,看房请提前1小时致电售楼部预约!
声明:本文由入驻焦点开放平台的作者撰写,除焦点官方账号外,观点仅代表作者本人,不代表焦点立场。


